Foundation
For over 60 years, Nebraska Christian Schools has been preparing students for success. As a private school accepting no government funding, NC has had the freedom to integrate God-honoring curriculum that equips students for tomorrow’s world.
In 1956, three farmers from Central Nebraska met together to pray about starting a school. Three years later their dreams became reality when the campus of Nebraska Christian College was purchased and renovated to be the campus of Nebraska Christian Schools.
Nebraska Christian Schools opened its doors for 38 high school students taught by six teachers in September of 1959. Dorms were opened for both boys and girls that same year. A junior high program was added in 1971, and grades kindergarten through six began in 1977. Today, the Foundation works to provide the resources necessary to continue the legacy of Nebraska Christian Schools.
The Next 50 Years Capital Campaign
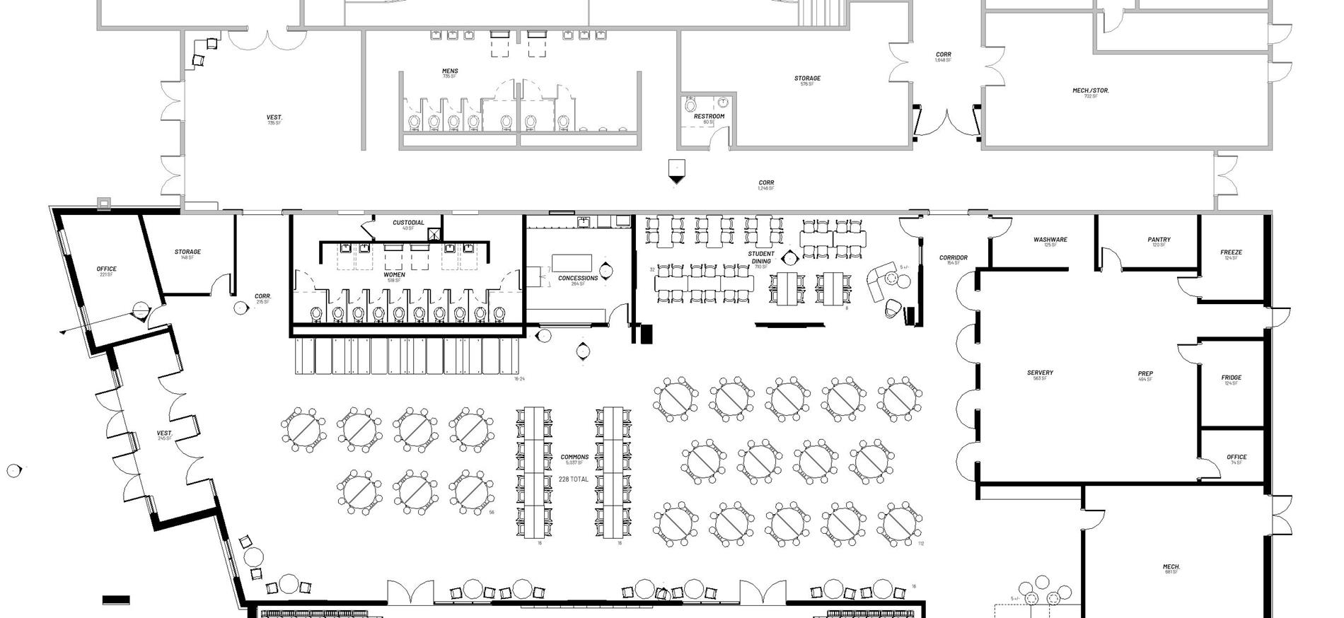
At Nebraska Christian we strive to offer students a high-quality education, grounded in truth that produces well-rounded individuals capable of excelling in whatever endeavor they choose to pursue. Inadequate classroom space, insufficient practice facilities, and cramped kitchen and dining areas are limiting our effectiveness and potential. The Next 50 Years Capital Campaign will update the campus and enlarge facilities, dramatically impacting our appearance and ability to accomplish our goals.
At this time, the Foundation's primary goal is the completion of a new kitchen and dining area for the school.

Foundation Scholarship Opportunity
Applications will be received for the 2026-2027 school year beginning in April, 2025
The Nebraska Christian Schools Foundation is excited to once again offer current NC Students the opportunity to apply for a local scholarship for the 2026-2027 school year. These are awarded to families in the NC community who demonstrate a need for financial assistance. For questions, please contact NCS Foundation Director, Jody Heuermann at jheuermann@nebraskachristian.org.
Mary and Victor Snell Scholarship Application Form
Beth Knudson Scholarship Application Form
(Students are permitted to apply for one or both scholarships)